Ócsa, Berzsenyi utca 6., 2-es épület tervei

A 2-es épület egyszerű bejelentéssel történő építéséhez az alábbi terveket 2025.12.19-én nyújtottuk be!

A Hatóságnak biztosított elbírálási idő leteltével (2025.01.15) az építkezés megkezdhető!

2-es épület helyszínrajz.

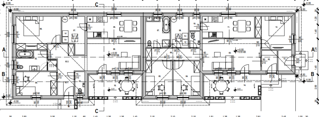
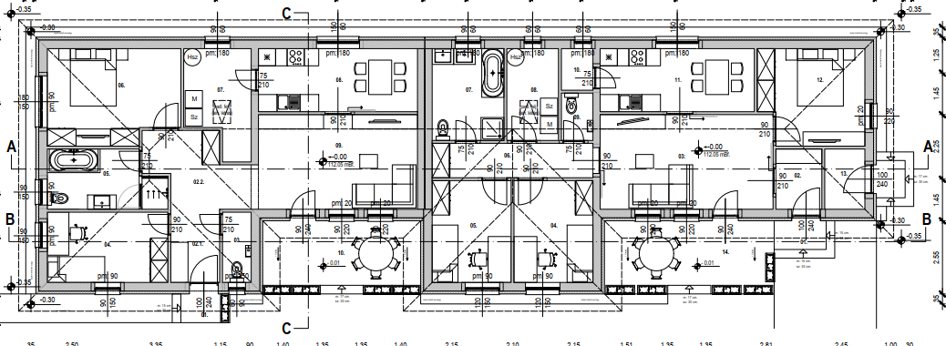
2-es épület alaprajz.