Ócsa, Berzsenyi utca 6., 1-es épület tervei

Helyszínrajz.

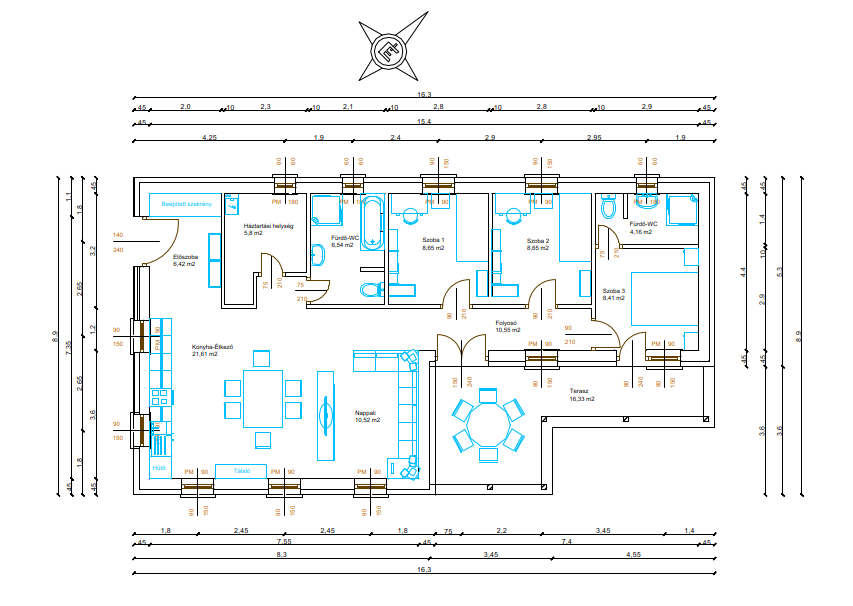
Eredetileg tervezett alaprajz.

Általunk készített, de belső elrendezésében még alakítható alaprajz.